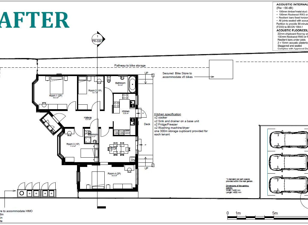
We are pleased to share a recent planning success achieved through our proactive and constructive engagement with the London Borough of Bexley, where planning permission was granted at committee for the change of use from a residential dwelling (Class C3) to a House in Multiple Occupation (Class C4) for up to six occupants, including the provision of dedicated parking to the rear of the property. Securing approval at committee demonstrates both the sensitivity of the proposal and the robustness of the planning strategy put forward on our client’s behalf.
From the outset, this application required careful handling due to local concerns around HMOs, including impacts on residential character, parking pressure, and amenity. Through detailed dialogue with planning officers and councillors, we addressed these matters head-on. Our approach combined clear policy justification, strong supporting evidence, and practical mitigation measures, ensuring that the proposal aligned with both national guidance and Bexley’s local planning objectives. By the time the application reached committee, members were confident that the development would function well within its surroundings and deliver much-needed housing without harm to the area.


The benefits of this permission are significant. The approval enables the efficient use of an existing residential property to meet ongoing demand for shared accommodation, while maintaining high living standards for future occupants. The inclusion of on-site parking to the rear was a key factor in demonstrating that the development would not exacerbate local parking stress, helping to balance intensification with neighbour amenity. For our client, this consent unlocks enhanced rental potential, long-term asset value, and certainty in delivery within a tightly controlled planning environment.
For potential clients, this project exemplifies what our planning consultancy does best: navigating complex policy landscapes, managing sensitive applications, and securing approvals where others may struggle. Whether your proposal involves change of use, intensification, or a scheme likely to be scrutinised by planning committee, we provide clear strategy, persuasive representation, and consistent engagement with councils to achieve results. If you are looking to maximise the potential of your property and need a planning partner who can confidently guide your application from submission to approval, we would be delighted to help.


Leave a Reply
You must be logged in to post a comment.